top of page
Johari Residence Masaki
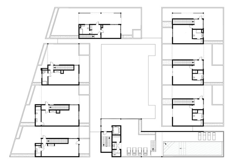
Kompleks budynków wielorodzinnych położony w nadmorskiej dzielnicy Masaki, znanej z licznych willi, hoteli i ambasad. Pięciokondygnacyjne budynki wyposażone są w podziemną halę garażową, wewnętrzne patio, tarasy dachowe oraz basen z widokiem na Ocean. Starannie zaprojektowane układy mieszkań zapewniają naturalne zacienienie i efektywną wentylację krzyżową.
Lokalizacja: Dar es Salaam, Tanzania
Powierzchnia: 7729,99 m2
Współpraca: Projekt HAG sp. z.o.o.– współpraca ZZAA
Inwestor: Johari Developers Limited
Zakres prac: projekt koncepcyjny
Status: realizacja 2024-2025
bottom of page












