Willa Dimani
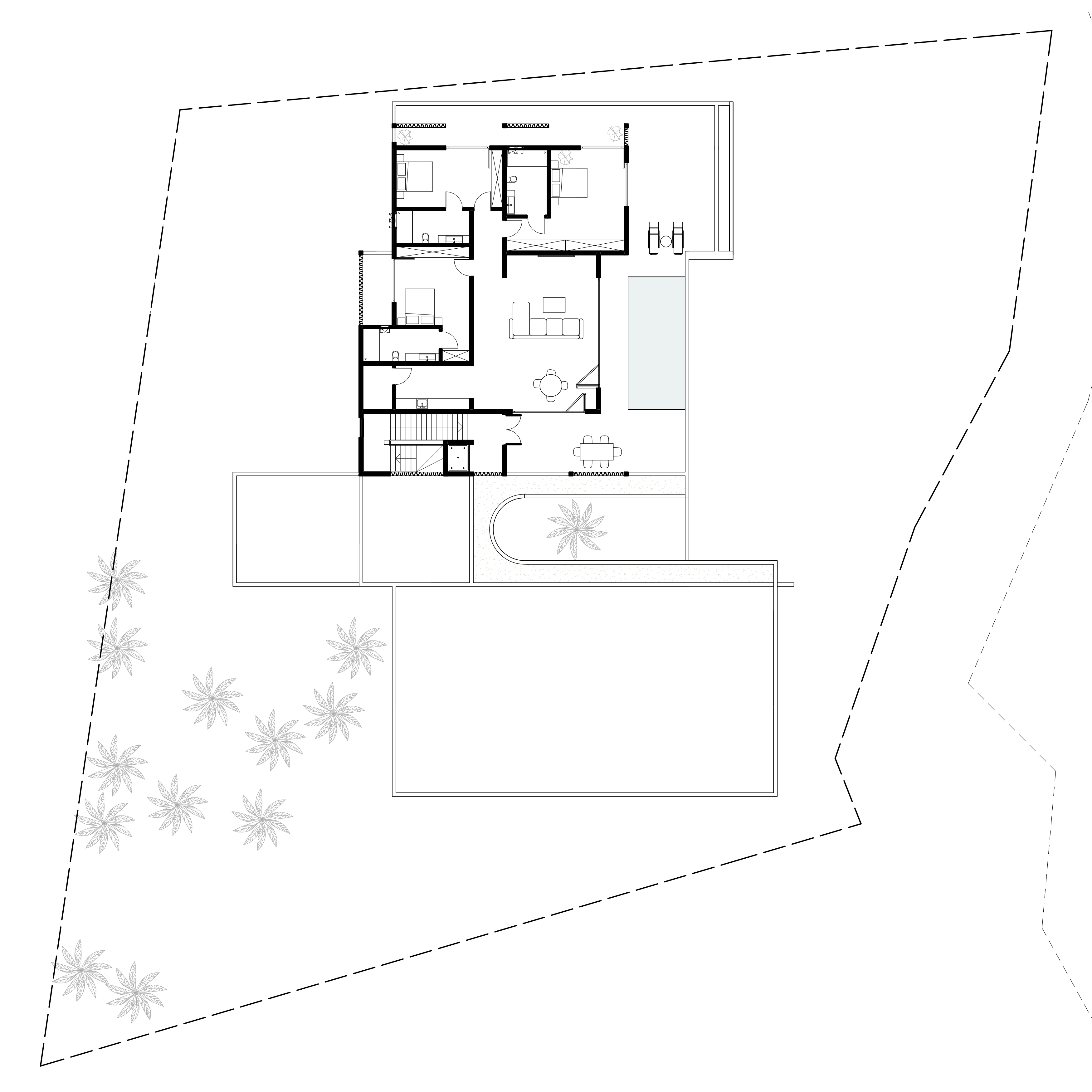
Willa położona na Zanzibarze, w pobliżu wioski Dimani na wybrzeżu Oceanu Indyjskiego, zaprojektowana została dla dużej rodziny zaangażowanej społecznie i religijnie. Dom obejmuje dziwięć sypialni z prywatnymi łazienkami, dwa baseny na różnych poziomach, tarasy, przestronny salon, salę kinową oraz zaplecze dla służby. Przestrzenie wewnętrzne i zewnętrzne płynnie się przenikają dzięki częściowo otwartemu dziedzińcowi, galerii i strefie basenowej. Szczególną wagę przyłożono do ochrony budynku przed przegrzewaniem – wszystkie okna są głęboko zacienione, a układ przestrzenny umożliwia naturalne przewietrzanie wnętrz oceaniczną bryzą.
Lokalizacja: Dimani, Zanzibar
Powierzchnia: 670,54 m2
Współpraca: Projekt HAG Sp. z o.o. - współpraca ZZAA
Inwestor:Prywatny
Zakres prac: projekt koncepcyjny, projekt budowlany
Status: realizacja 2025












